产品描述: Z型75/20~125/32吨双梁铸造桥式起重机 YZ Type 75/20~125/32t Double-beam Cast Bridge Crane YZ型双梁铸造桥式起重机是我公司主要生产的产品之一,图纸: YZ型双梁桥式铸造起重机产品说明: 铸造起重机是炼钢连铸工艺中的主要设备。主要用于吊...

Z型75/20~125/32吨双梁铸造桥式起重机
YZ Type 75/20~125/32t Double-beam Cast Bridge Crane
YZ型双梁铸造桥式起重机是我公司主要生产的产品之一,图纸:

YZ型双梁桥式铸造起重机产品说明:
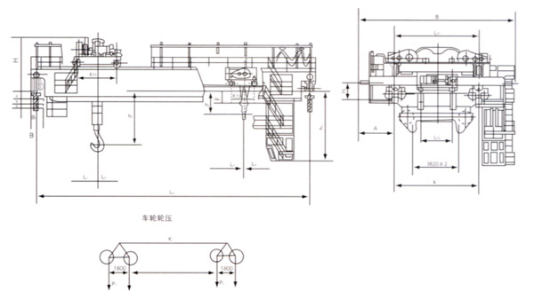
铸造起重机是炼钢连铸工艺中的主要设备。主要用于吊运和转运液态钢包。
从总体构造可分为双梁双轨、四梁四轨、四梁六轨等型式。前两种一般用于中、大吨位铸造起重机,第三种一般用于特大吨位铸造起重机。
我公司设计制造的铸造起重机有技术先进、结构新颖、安全可靠、经济耐用、维护简单等特点。
另外我们的铸造起重机可提供以下功能,供用户选配:
1.可旋转吊具
2.龙门钩钩距可变
3.载荷的称重及显示
冶金起重机:是制依靠沿厂房轨道方向的纵向移动、小车的横向移动和吊钩的升降运动来进行工作。适用于金属冶炼车间,符合JB/T7688.1-95及JB/T7688.15-95标准的用于吊运熔融金属的专用起重机。冶金起重机应用 一般适用于-10℃到+50℃的环境温度,在40℃的温度下相对湿度不超过50?,所吊运的熔融金属对锻钩、板钩的辐射温度不超过300℃。工作级别:A7、A8用于相对繁忙的冶金铸造车间YZ型-冶金桥式起重机,天车,行车,
适用范围:
冶金起重机主要适用于金属冶炼、扎制和热加工等的专用起重机。其中包括平炉加料桥式起重机,天车,行车,、地面加料起重机、料箱起重机、脱锭起重机、整模起重机、揭盖起重机、夹钳起重机、板坯翻转起重机、锻造起重机、加热炉装取料起
重机、料箱-电磁起重机、料箱-抓斗起重机。其他类似的冶金起重机也可参照使用 。
- 上一篇:LH葫芦双梁桥式起重机
- 下一篇:QE型双小车吊钩桥式起重机






